本ページをご覧いただき、誠にありがとうございます。
当HPでは、美容医療クリニックや自由診療に適した、特別なテナント物件をご紹介しております。物件は岐阜県岐阜市、女性専用マンションの屋上に位置。プライバシー・導線・空間設計のすべてにおいて、美容医療の開業や2号店展開にふさわしい環境であり、目の前に広がる開放感あふれるロケーションも大きな魅力です。内装は一級建築士による高級エステ仕様。現状のまま活用でき、初期投資を抑えつつ上質な開業が可能です。

ご興味のある方は、ぜひ一度お問い合わせください。

美容医療に最適な開業環境を支える3つの特長

プライバシー重視の
完全導線

屋上・直通エレベーター・女性専用空間により、施術後でも人目を気にせずご帰宅いただけます。
VIP対応やダウンタイム配慮を重視したクリニックに最適な設計です。

高級エステ仕様の
即利用可能空間

床暖房・水盤・個室ブースなど、美容医療に適した内装がそのまま活用可能。
初期費用を抑えながらも、上質な空間演出が実現できます。

医療報酬は全国一律
地方開業でも収益◎

都市部と同等の診療報酬が得られる自由診療においては、東京の約3分の1のコストで開業できる本物件は、収益性重視のドクターに最適です。

 2号店・サテライトクリニックに最適です

すでに都心でクリニックを運営中の方へ。

本物件は、以下のような2号店・サテライト開業としてもご活用いただけます。

  • 施術後の肌を休める“隠れ家”的施術拠点に
  • 月数回のみの診療日で運営する予約制スポットとして
  • リピート率の高い患者様への限定施術ルームに

患者様の快適性はもちろん、スタッフ動線・車来院導線など、医師・運営側にとっても扱いやすい構造となっております。

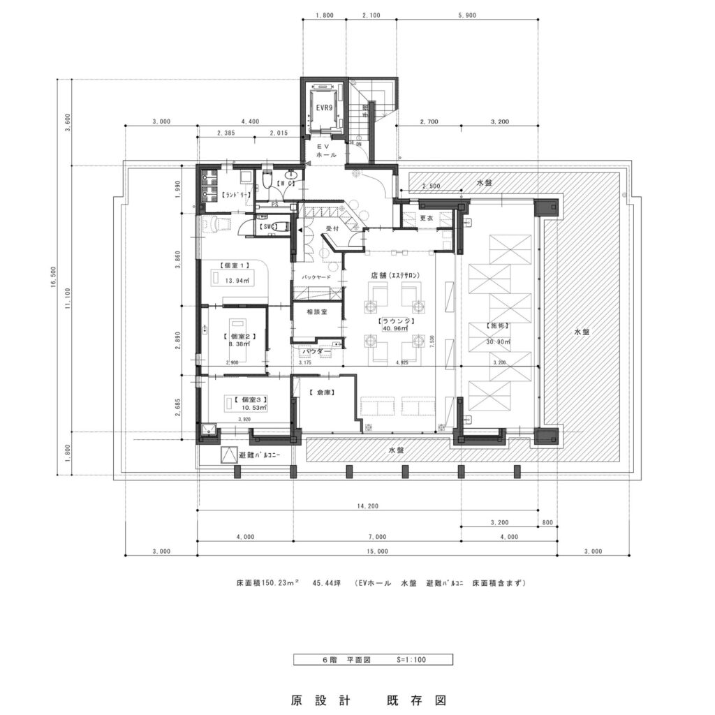
最小限の改装で、そのまま使える空間設計

高級エステサロンとして使用されていた内装が良好な状態で残されており、現状の間取りを活かしたレイアウト変更が可能です。
掲載の図面案の通り、大規模な構造変更を行うことなく、美容医療クリニック向けの空間としてスムーズに再活用できます。そのため、初期投資を抑えながらも、上質な空間づくりが叶う点も本物件の大きな魅力です。

現在の設計図

美容医療クリニック向け改装案

※画像タップで拡大してご覧いただけます。

当物件の魅力

物件詳細(一部抜粋)

項目内容
場所岐阜県岐阜市川部2丁目
面積156.99㎡(約47.5坪)
坪単価1坪あたり10,000円(税別)
用途美容皮膚科・美容外科など自由診療系に最適
特徴元高級エステサロン居抜き/床暖房/水盤あり/個室設計
駐車場5台分を賃料に含み、さらに最大10台以上の確保が可能です(通院対応◎)。
セキュリティセコム警備/エレベーター直通/女性専用マンション最屋上階
賃料や初期費用の詳細に関しては個別にご案内しております。

活用方法や診療スタイルに応じて、柔軟な条件提示が可能です。まずはお気軽にお問い合わせください。

現地ギャラリー|空間の魅力を写真でご紹介

本物件は、一級建築士事務所によって高級エステサロン仕様として設計された、上質なデザイン空間です。細部まで計算された意匠設計により、機能性と快適性を兼ね備えた、洗練された空間構成が実現されています。
また、目の前に広がる開放感あふれるロケーションは、患者様にとっても特別な体験となるはずです。

スクロールできます

※横スクロール、画像タップで拡大してご覧いただけます。

POINT
  • 床暖房付きの柔らかな木目フロア
  • 女性専用マンション屋上の開放感あふれるロケーション
  • 水盤のあるエントランスで非日常を演出
  • プライバシーに配慮された個室施術空間

お問い合わせの流れ

STEP
お問い合わせフォームの送信

お問い合わせフォームに必要情報を入力して送信してください。

STEP
担当者よりメールにてご連絡いたします。

ご入力内容を確認後、担当者よりメールにてご案内致します。

STEP
内覧やお打ち合わせ日時のご調整

ご希望日時をお伺いし、担当者と調整のうえ、お打ち合わせ及び内覧予約を確定致します。

STEP
条件や契約に関するご説明

物件の詳細条件(家賃・保証会社・保険加入・メンテナンス等)について個別にご案内致します。

お問い合わせ・内覧希望はこちらから

本物件には、美容医療分野の方を中心にご関心をお寄せいただいております。
ご希望の活用スタイルや条件に応じて丁寧にご案内いたしますので、少しでもご興味をお持ちの方は、お気軽にお問い合わせください。

※初期費用・家賃条件はご相談時に柔軟な対応が可能です。
※美容医療以外のご相談も歓迎(飲食店・デンタル系など)